Permettere ai professionisti di avere tutti i dati facilmente e velocemente
Service description
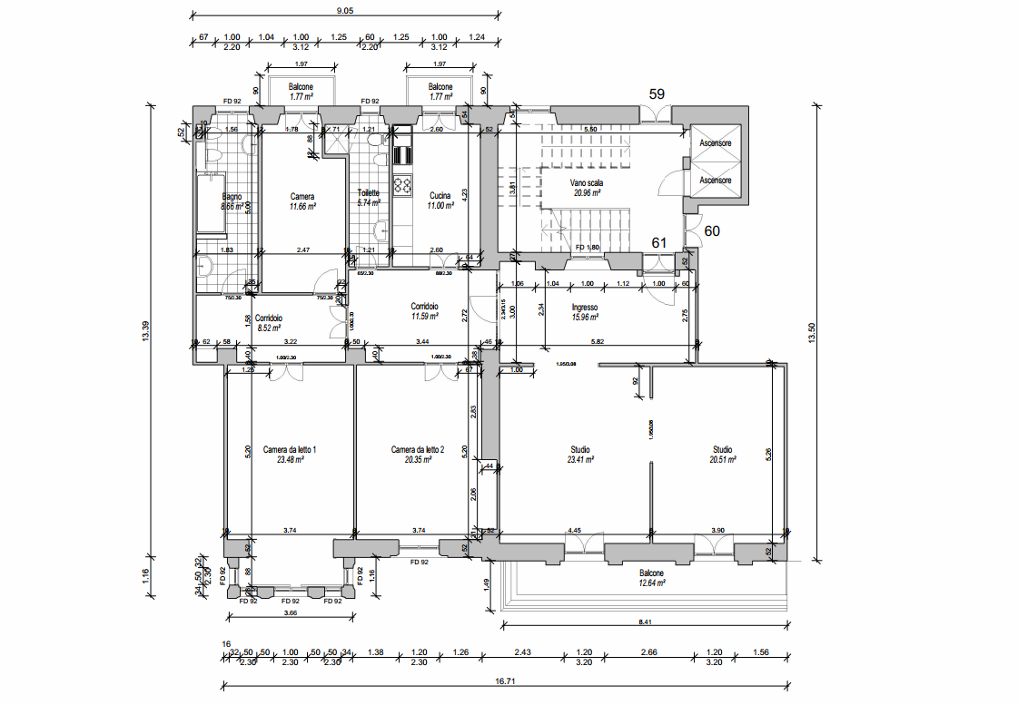
Rilievi interni con laser (laser scanner 3D) sono una tecnica avanzata che usa impulsi laser per acquisire dati tridimensionali precisi e dettagliati di ambienti interni, creando una “nuvola di punti”.
Questo metodo, noto anche come LIDAR, genera modelli 3D accurati in breve tempo, consentendo la creazione di documentazione dettagliata per progetti architettonici, ingegneristici e BIM, come il gemello digitale di un edificio.
- Elevata precisione: La tecnologia permette di ottenere misurazioni millimetriche, ideali per rilievi complessi.
- Rapidità di acquisizione: I tempi necessari per il rilievo sono notevolmente ridotti rispetto ai metodi tradizionali.
- Dettaglio e completezza: Viene catturato ogni dettaglio dell'ambiente, compresi i dettagli più minuti, offrendo un'immagine accurata e completa.
- Versatilità: È utilizzabile per interni ed esterni, spazi complessi e per la creazione di modelli 2D, 3D e BIM.
Lavoriamo con diversi software: AutoCad, ArchiCad e Revit
Frequently asked questions
Nulla Lorem mollit cupidatat irure. Laborum magna nulla duis ullamco cillum dolor. Voluptate exercitation incididunt aliquip deserunt reprehenderit elit laborum.
How long will it take to complete the design?
Amet minim mollit non deserunt ullamco est sit aliqua dolor do amet sint. Velit officia consequat duis enim velit mollit. Exercitation veniam consequat sunt nostrud amet. Nulla Lorem mollit cupidatat irure. Laborum magna nulla duis ullamco cillum dolor. Voluptate exercitation incididunt aliquip deserunt reprehenderit elit laborum.
Can I make changes during the process?
Amet minim mollit non deserunt ullamco est sit aliqua dolor do amet sint. Velit officia consequat duis enim velit mollit. Exercitation veniam consequat sunt nostrud amet. Nulla Lorem mollit cupidatat irure. Laborum magna nulla duis ullamco cillum dolor. Voluptate exercitation incididunt aliquip deserunt reprehenderit elit laborum.
Do you handle permits and approvals?
Amet minim mollit non deserunt ullamco est sit aliqua dolor do amet sint. Velit officia consequat duis enim velit mollit. Exercitation veniam consequat sunt nostrud amet. Nulla Lorem mollit cupidatat irure. Laborum magna nulla duis ullamco cillum dolor. Voluptate exercitation incididunt aliquip deserunt reprehenderit elit laborum.
Are sustainable designs an option?
Amet minim mollit non deserunt ullamco est sit aliqua dolor do amet sint. Velit officia consequat duis enim velit mollit. Exercitation veniam consequat sunt nostrud amet. Nulla Lorem mollit cupidatat irure. Laborum magna nulla duis ullamco cillum dolor. Voluptate exercitation incididunt aliquip deserunt reprehenderit elit laborum.
How involved can I be in the design process?
Amet minim mollit non deserunt ullamco est sit aliqua dolor do amet sint. Velit officia consequat duis enim velit mollit. Exercitation veniam consequat sunt nostrud amet. Nulla Lorem mollit cupidatat irure. Laborum magna nulla duis ullamco cillum dolor. Voluptate exercitation incididunt aliquip deserunt reprehenderit elit laborum.
How can I request a consultation?
Amet minim mollit non deserunt ullamco est sit aliqua dolor do amet sint. Velit officia consequat duis enim velit mollit. Exercitation veniam consequat sunt nostrud amet. Nulla Lorem mollit cupidatat irure. Laborum magna nulla duis ullamco cillum dolor. Voluptate exercitation incididunt aliquip deserunt reprehenderit elit laborum.
